US$102.900
Gracias, su mensaje fue enviado correctamente. Nos pondremos en contacto a la brevedad.
FICHA TÉCNICA
- Referencia:18CF0
- Departamento:Montevideo
- Zona:La Blanqueada
- Dormitorios:Monoambiente
- Baños:1
- Ambientes:1
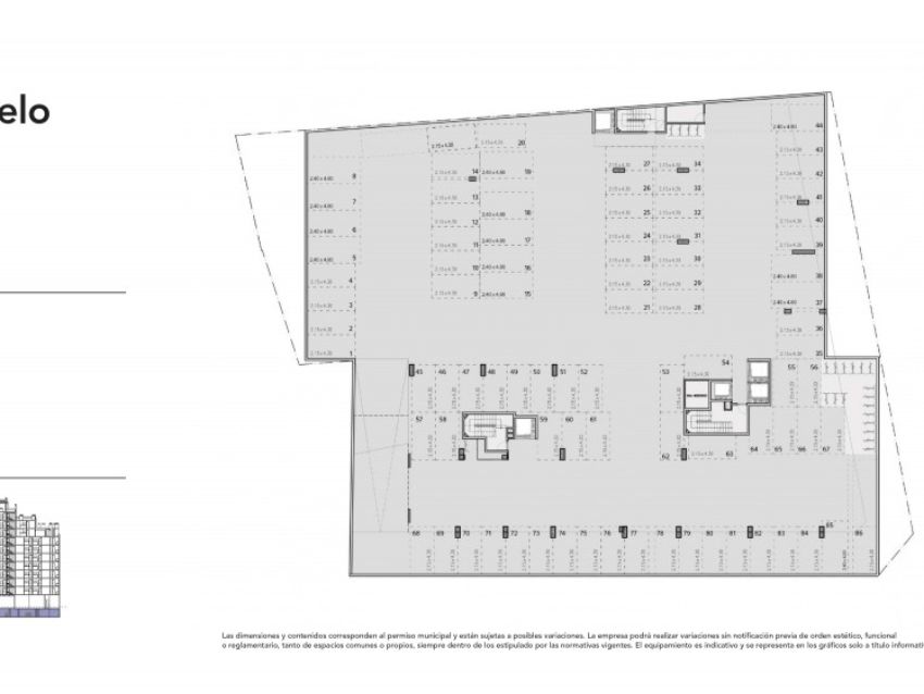
- Garajes:n/a
- Estado:En construcción
- Acepta Permuta:0
- Financia:0
- Disposición:al frente
- Plantas:1
- Apto para oficina:0
- Vivienda social:0
- Propiedad con vista al mar:0
- Año de la construcción:2024
- Orientación:N
- M2 Terraza:3
- Sobre:avenida
- M2 Terreno:0
- M2 Edificados:27
- M2 Área Total:30
- Distancia al mar:n/a
- Piso:3
- Año de la construcción:2024
- Pisos del edicifio:11
- Apartamentos por piso:0
- Gastos Comunes: UYU 3000
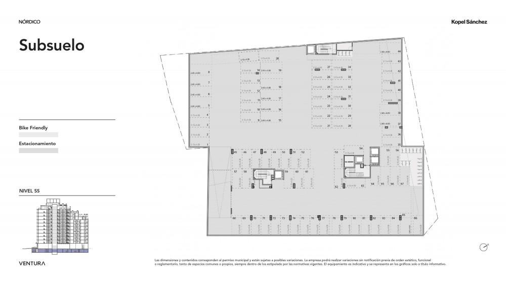
- Ascensor
- GYM
- Lavandería
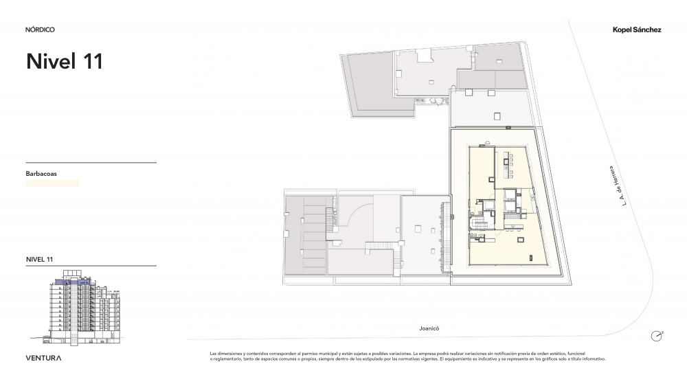
- Parrillero
- Playroom
- Salón de uso común
- WiFi
- Balcón
- Placard en cocina
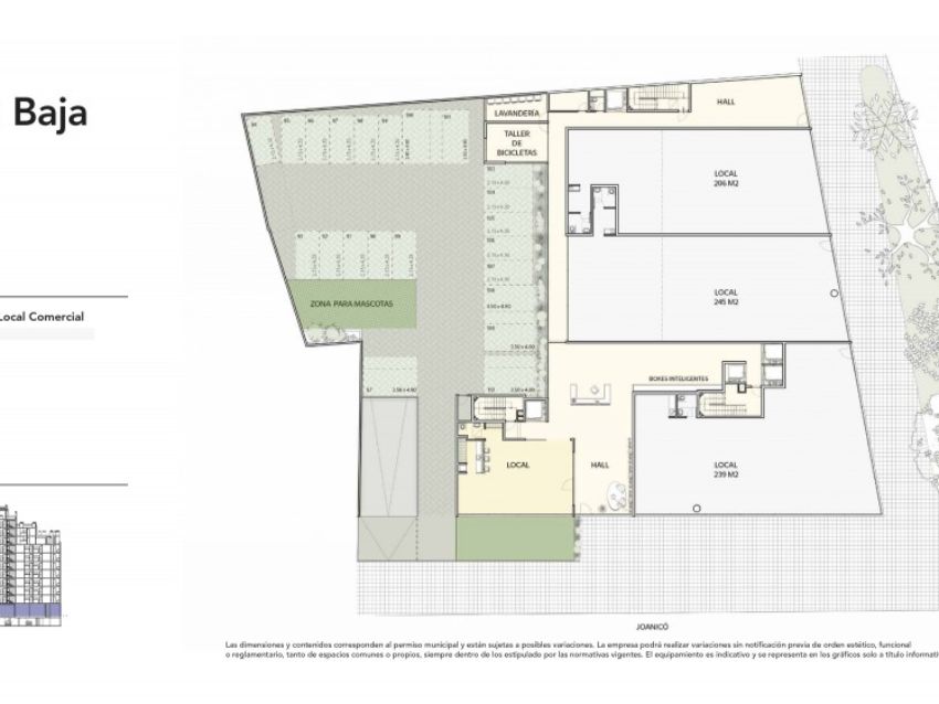
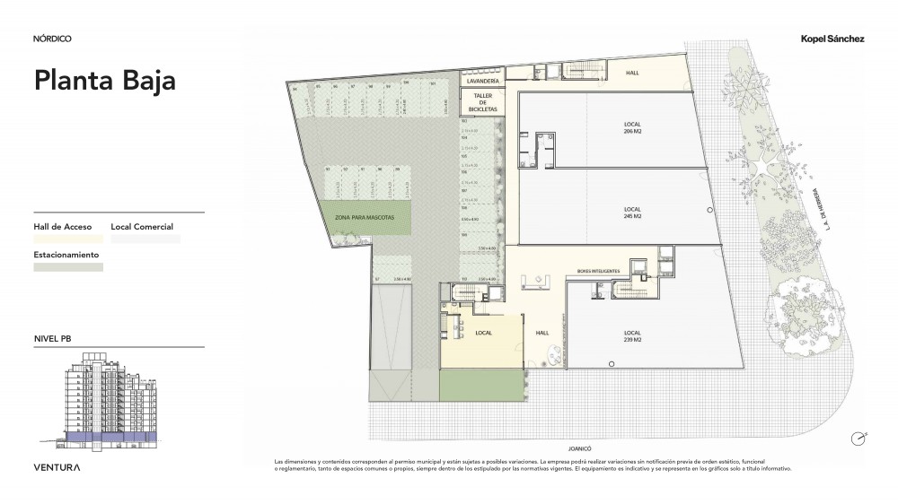
DESCRIPCIÓN
Ventura Nórdico
Ubicado sobre Luis Alberto de Herrera, con todos los servicios próximos. Entre medio del Nuevo Centro Shopping y el Montevideo Shopping. Cercano a clubes deportivos, universidades, plazas y parques, y hospitales.
El proyecto se enmarca bajo la ley de vivienda promovida y se divide en 3 etapas(A, B y C), con un total de 209 unidades. Monoambientes, 1 dormitorio y 2 dormitorios.
Modernos y luminosos apartamentos, pisos vinílicos imitación madera, aberturas de aluminio de excelentes prestaciones, muy disfrutables.
Monoambiente de 27m2 edificados. Living-comedor, cocina integrada con placares aéreos y bajo mesadas, y baño. Cuenta con balcon.
El edificio cuenta con SUM, parrilleros, gym, área para niños, lavandería, huertas y barbacoas.
Monoambientes desde USD 99.900
1 dormitorio desde USD 132.900
2 dormitorios desde USD 169.900
Cocheras desde USD 17.500
Entrega Unidades TORRE A: Mayo 2025
Entrega Unidades TORRE C: Octubre 2025
Entrega Unidades TORRE B: Julio 2026
UBICACIÓN
Av. Luis Alberto de Herrera esq. Joanicó














